返回列表
发布日期:2021-11-23 16:51:23 浏览次数:837

![]()
大唐新希望·臻园择址天赋稀脉之上,于南宁市五象新区核心区,拥有得天独厚的教育资源与生态资源,坐拥17株百年古树“活化石”,一汪活水缠绕其中。洲宇设计整合资源,规划先行,致力于打造以书院文化为主题、弘扬国风传统文化的示范区,使基地得天独厚的古树资源与居住价值完美融合,尽展闲情雅致。
△【项目区位图】
在有限的空间里,循自然之道,执自然之材。整个项目的设计,不仅保留了一处天然氧吧,更为示范区和超大园林区域的打造创造了绝佳的条件,达到“虽由人作,宛若天开”的艺术境地。
自古文人士大夫阶层都较为推崇在古翠之间集会,赋诗对弈。在此种氛围和场所条件下,设计团队怀揣着对中式庭院美学的憧憬,取意于宋式书院的艺术手法,打造充满诗情画意的大唐新希望·臻园示范区。

规划即注重就地取材,运用宋式园林的生活场景,营造私家园林游园体验,强化空间的实用性与自由性,给予人与环境更多互动性的可能。
△【动线分析】

△【实景鸟瞰】
约4869.6㎡平方的活水蜿蜒横跨于项目基地,我们通过重新梳理动线,来解决水陆交替所带来的交通不便。

对于场地最大10.45的高差,我们尊重原始地形高差与水系布局,最大限度地利用及保护场地原生的古树与土地肌理,将湖、树、台、壁、亭、楼等自然生态资源融入环境之中,希望打造步移景异、一步一景的游园体验。
△【古树昔旧照】

△【规划及建筑】
大唐新希望·臻园示范区设计以宋式书院美学为基调,以探索惊鸿古风为情感基础展开动线,打造“壹行-贰望-叁居-肆游”四重画意空间,复兴东方传统礼序,形成尊贵优雅、宁静致远到明朗开阔的不同心境转换,完美诠释了“游者忘倦,寓者忘归,居者忘忧”的理想意境。





它既是一个庄重的售楼部,用恢弘大气的姿态向人们展示社区的形象;又以开放包容怀抱姿态拥抱这片原生态自然,创造“不出城廓而获山水之怡,身居闹市而得林泉之趣”的感官感受。建筑设计从宋式书院美学提取灵感,加以现代转译,凝结成当代诗篇。



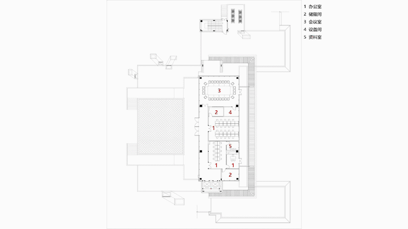
建筑共分为三层。考虑到观景效果,把沙盘区、洽谈、家宴、书吧等主要销售区设置于负一层,负二层则作为接待、健身区、儿童游玩区等泛会所空间。

△【示范区分析图】



宋代建筑结构收敛,屋檐多出挑深远,在阴影下看,建筑线条的水平感突出,有向两侧延伸的意味,呈现出一种轻盈典雅的特征。

因此建筑风格采用中式典雅风格,强调对称性,塑造中正平和的立面形象。在古典三段式中通过横向线条,强调干净,简洁,水平舒展。


整体建筑遵循南宁城市的素雅基调,通过大面积超白高透钢化玻璃和精致的铝板的虚实对比让整个主立面看起来通透梦幻,气势恢宏而不失精致。


有别于汉唐,宋式建筑较少将粗大豪放的结构构件外露,而是藏在墙体里面或者与墙体融为一体,建筑外露的线条追求灵动、劲痩的特征。


售楼处立面构成兼顾横向与纵向的比例关系,屋檐曲度成为整个立面的点睛之笔,简约而不简单,尽显大气典雅之感。






从唐代的豪迈奔放转向柔美精巧,宋式建筑是中国古建筑史上最精巧却不繁复的建筑形式。不管是窗扇还是扶手栏杆,都没有不当的尺寸或者过于繁琐的细节。


售楼处在保证整体风格典雅大气之外,对细部节点进行精心雕琢。在材质接口处采用巧妙的“隐形”手法,用格栅起翘等充满韵律感的设计来完善建筑细部。每个角度都体现着精细和价值感。



我们无法真的回到过去,让曾经再现,但可以追随文脉对灵魂的吸引,用建筑实践渐进与迭代。

大唐新希望·臻园示范区让宋式建筑与中式园林一脉相承,有机结合,用现代技艺构建宋式韵味,满足现代人群审美需求,促进本土文化审美觉醒与自信精神,融汇传统人居建筑文化精髓。
△【技术图纸 1-3层平面】
△【技术图纸 立面图】
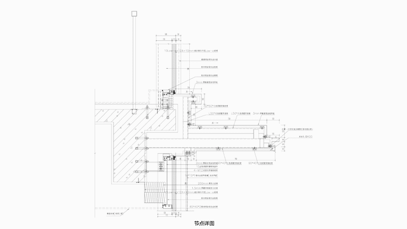
△【技术图纸 节点详图】
△【总平图】
建筑规模:占地面积 11309㎡ 建筑面积 3156.8㎡
业主单位:新希望地产 大唐地产
业主创作团队:陈阜林 徐铭 毛雁 钟凯 郭锐 朱万程 周迪 许鹏 代新博 丰婕 冯晓冬 杜展辉 叶茂盛 刘玉雁
业主项目公司团队:潘立定 赵汝峰
建筑设计:洲宇设计集团股份有限公司
设计团队:洲宇设计集团·创研中心/创意三部
施工图设计:洲宇设计集团·南宁公司
景观设计:深圳柏影景观设计有限公司
幕墙设计:利达装饰集团有限公司
摄影:纯点摄影 深圳市林绿文化传播有限公司 老虎视觉
插图:王丝丝
本网站资料版权归学会所有,如需合作请联系我们取得授权
联系电话:028-62551843
邮箱:scjzsxh0866@163.com