返回列表
发布日期:2021-11-16 16:03:03 浏览次数:2832
项目名称:成都生物医药创新孵化园
设计单位:中国建筑西南设计研究院有限公司
项目地点:成都市高新区新川科技园
业主:成都高投置业有限公司
用地面积:112000㎡
建筑面积:294000㎡
建筑高度:49.9m
设计完成时间:2015.08
建成使用时间:2018.06

生物医药创新孵化园
成都生物医药创新孵化园项目
位于成都新川创新科技园以内
采用花园+产业园的规划理念
植入具有人文关怀的功能及空间
塑造安静、宜人、绿色的办公环境
园区入口及庭院▼


园区夜景▼


结合原始地形保留大面积可渗透地面
营造类湿地景观净化园区的空气
同时增加雨水的回渗,减少城市热岛效应
最终通过低技的、适于建造的绿色策略
打造一个高度整合产业发展
具有人文环境的创新生态园
园区服务中心▼

园区庭院景观▼


01
[ 通风先行 洁污分流 ]
项目主要功能为生物医药实验室,污染大,通风要求高,洁污流线特殊。设计以调研并思考怎样解决同类园区现有问题作为创新设计的起点,从始至终坚持着“设计改变生活”的理念。
已建园区问题▼

总平面布局
总平面设计以理性分析推导生成,运用BIM策略,通过CFD风模拟比较及计算,采取了板楼单体建筑错列式的总平布局,并将单体的底层架空以减少涡流区的影响范围,获得总平面最佳的通风效果。
理性推导——CFD模拟▼

底层架空▼


总平面图▼

单体立面风管预留设计
设计着眼长远目标,对实验风管的路径进行合理规划及预留,避免建筑立面上的“私搭乱建”;同时在竣工后制作楼宇说明书并给予宣贯,保证建筑立面不受影响。
风管路径预留规划▼


单体立面遮阳与导风设计
通过设置铝合金水平遮阳板兼作导风板,利用导风槽结合分体空调室外机位,将新风自然引入室内,并通过CFD风模拟获得验证,改善了实验室内充斥异味气体的不良工况,大大减小职业病带来的危害,该构造获得实用新型专利。
立面遮阳板与导风槽设计▼

遮阳与导风效果示意▼

利用导风槽局部位置设置空调室外机▼

室内风速模拟分析▼

实用新型专利证书▼

02
[ 土方平衡 雨水回渗 ]
原始场地地形高差达20米,用地南北两侧道路高差近8米。
场地高差▼

土方平衡
现状用地低于规划道路的区域作为地下车库及景观集中区域,实现土方平衡;地下室底板及顶板标高随原始地形由北向南逐级跌落,减少土方开挖。
土方就地平衡▼

地下室逐级跌落▼

雨水回渗
总平地下室结合地形分区域设计并连通,形成自然的低洼地带,增加地表水的回渗,减少城市热岛效应。
雨水回收利用▼


03
[ 资源把控 极致限额 ]
限额设计
依托城市设计及类似园区数据统计进行功能业态策划,同时针对研发及孵化功能业态设计考虑应对市场变化的适应性。在低造价限额的条件下贯彻全生命周期的绿色低碳、低技策略,创造宜人的园区和谐关系。
低造价限额设计▼

极简的立面造型
立面造型服从建构理论,设计采用极简的设计策略,在限额条件下对资源进行合理分配,关注材料的组织,比例尺度的控制,还原空间原本特质的自然美学。
极简设计的建构理论实践▼

细节与韵律▼

宜人的园区和谐关系▼

04
[ 设计图纸 ]
总平面图▼

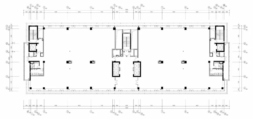
研发楼标准层平面图▼

孵化楼标准层平面图▼

办公楼标准层平面图▼

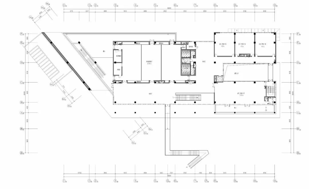
园区服务中心一层平面图▼

园区服务中心二层平面图▼

地下室平面图▼

办公楼立面图▼

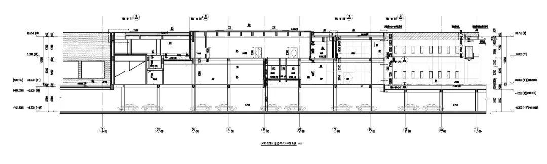
园区服务中心剖面图▼

主持建筑师:钱方
建筑:张宗腾 王永炜 雷冰宇 褚娜艳
结构:成锐 雷雨
电气:银雪 李江涛
暖通:张宁 彭治霖
给排水:朱瑞 张峥
幕墙:李铭
景观:刘乔
绿建:杨正武 石利军
建筑经济:王晓科
摄影:存在建筑
版权声明
本文版权归中国建筑西南设计研究院前方工作室所有
欢迎各类媒体合作,请与我们联系取得授权
联系电话:028-62551933
